Skip to main content
Menü
  • Landschaftsbild: Kuchen von oben

Bebauungsplan „Urbanes Quartier Spitzenberg“ im beschleunigten Verfahren nach § 13 a BauGB und örtliche Bauvorschriften nach § 74 LBO

  • Öffentliche Bekanntmachung der erneuten Veröffentlichung und Auslegung des Bebauungsplanentwurfs und der Örtlichen Bauvorschriften gem. § 4a Abs. 3 BauGB bzw. § 74 LBO 

Der Gemeinderat von Kuchen hat am 23.03.2026 in öffentlicher Sitzung beschlossen, den Bebauungsplan „Urbanes Quartier Spitzenberg“ im beschleunigten Verfahren nach § 13 a BauGB sowie die Örtlichen Bauvorschriften nach § 74 LBO für diesen Bereich gem. § 4a Abs. 3 BauGB erneut zu veröffentlichen und öffentlich auszulegen. Der Bebauungsplan und die Örtlichen Bauvorschriften werden im beschleunigten Verfahren nach § 13 a BauGB ohne Durchführung einer Umweltprüfung aufgestellt. 

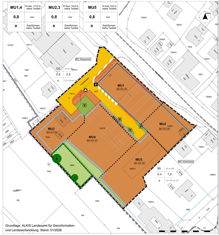
Für den räumlichen Geltungsbereich des Bebauungsplanentwurfs und der Örtlichen Bauvorschriften ist der Lageplan vom 23.03.2026, gefertigt vom Ing.-Büro VTG Straub, Donzdorf, maßgebend. 

Das Plangebiet befindet sich unmittelbar am westlichen Ortseingang von Kuchen. Die Bundesstraße B 10 verläuft direkt nördlich entlang des Areals. Die Fläche grenzt an bereits bebaute Mischflächen mit überwiegender Wohnbebauung im Osten sowie Gewerbeflächen im Westen an.
Der Geltungsbereich des Bebauungsplans umfasst die Flurstücke Nr. 1067, 1067/1, 1067/2, 1064, 1068/1 (teilweise) und 1161/1 (teilweise). 

Auf die nachfolgende Karte wird verwiesen.

Der vorliegende Bebauungsplan soll im Plangebiet nun die planungsrechtlichen Voraussetzungen für die Entwicklung von Wohn- und Gewerbeflächen, aber auch Flächen für wohnortnahe Versorgung mit Gesundheitsangeboten schaffen und das Gebiet somit im Sinne der Innenentwicklung wieder nutzbar machen.
Das Plangebiet gliedert sich in folgende Bereiche: Im Norden befindet sich das Gesundheitszentrum mit dem anschließenden, derzeitigen freien Bereich der abgebrochenen Lagerhalle, im Osten soll ein Bürogebäude errichtet werden, während im Süden ein Mehrfamilienwohnhaus mit 20 – 30 Wohneinheiten entstehen soll. Das gesamte Gebiet wird als Urbanes Gebiet festgesetzt. Die beiden am Rand gelegenen Grundstücke Hauptstr. 173 (Südwesten) und Hauptstr. 163 (Nordosten) werden in den Bebauungsplan einbezogen (Hauptstr. 163 nur teilweise).  Den einzelnen künftigen Nutzungen entsprechend werden für die Teilbereiche unterschiedliche Schwerpunkte festgesetzt. So ist im nördlichen Teilbereich Einzelhandel im Erdgeschoss möglich, im übrigen Gebiet jedoch ausgeschlossen (Agglomerationsverbot der Regionalplanung). 

Nach der ersten Veröffentlichung und Beteiligung der Träger öffentlicher Belange wurden geringe Änderungen am Planentwurf erforderlich. Diese betreffen Festsetzungen zum Schutz vor Hangwasser, Festsetzungen zur Bepflanzung im Gebiet, Festsetzung einer Müllsammelstelle sowie Ergänzungen der Hinweise und der Begründung zum Bebauungsplan. 

Außerdem war auf Grund des angrenzenden Vogelschutzgebiets „Vorland der Mittleren Schwäbischen Alb“ eine Natura-2000-Vorprüfung durchzuführen. Diese ergab, dass erhebliche Beeinträchtigungen des Vogelschutzgebiets durch das neue Quartier ausgeschlossen werden können. 

Veröffentlichung im Internet und Öffentliche Auslegung

Der Entwurf des Bebauungsplans und der örtlichen Bauvorschriften mit Begründung wird in der Zeit  

vom 30. März 2026 bis einschließlich 30. April 2026

im Internet unter https://www.kuchen.de/urbanes-quartier-spitzenberg.html  

veröffentlicht 

und liegt zusätzlich im genannten Zeitraum 
im Rathaus Kuchen, vor Zimmer 14, Marktplatz 11, 73329 Kuchen
während der Öffnungszeiten aus.  

Dabei wird Gelegenheit zur Äußerung und zur Erörterung der Planung gegeben. 
Stellungnahmen können während der Dauer der Veröffentlichungsfrist abgegeben werden. Stellungnahmen sollen elektronisch übermittelt werden, können bei Bedarf aber auch auf anderem Weg abgegeben werden (insbesondere schriftlich oder zur Niederschrift).
Nicht fristgerecht abgegebene Stellungnahmen können bei der Beschlussfassung über den Bebauungsplan unberücksichtigt bleiben. 

Da das Ergebnis der Behandlung der Stellungnahmen mitgeteilt wird, ist die Angabe der Anschrift des Verfassers zweckmäßig. 

Dienststunden:
Montag, Dienstag, Donnerstag und Freitag: von 8.30 Uhr bis 12.00 Uhr
Montag und Donnerstag: von 14.00 Uhr bis 16.00 Uhr
Mittwoch: von 14.30 Uhr bis 18.00 Uhr 

Kuchen, den 24.03.2026
Bürgermeisteramt

Hier können Sie die folgende Unterlagen herunterladen:
BPL Urbanes Quartier Spitzenberg - ZEICHNERISCHER TEIL, 23.03.2026 (pdf,  2 MB)
BBPL Urbanes Quartier Spitzenberg- SCHRIFTLICHER TEIL 23.03.2026 (pdf, 623 KB)
BBPL Urbanes Quartier Spitzenberg - BEGRÜNDUNG 23.03.2026 (pdf,2 MB )
Natura-2000 VP BPL Urbanes Quartier Kuchen final (pdf, 1 MB)
BPL Urbanes Quartier Spitzenberg Kuchen HPA Reptilien final (pdf, 6 MB)
BPL Urbanes Quartier Spitzenberg Kuchen Reptilien Maßnahme (pdf, 563 KB)
BPL UrbQuartier Spitzenberg Kuchen Plausibilisierungsprüfung HPA Reptilien final (pdf, 3 MB)